Project Location

Masaki, Dar es Salaam, Tanzania

Project Type

Residential Towers

Project Status

On Going

Project Overview

From the second you set eyes on Mary Knoll Residency, you know you've arrived somewhere special. A Luxurious designed structure looking like a Five Star Hotel complimenting its exclusive position on the Mary Knoll Lane. But it's only once you enter your own apartment that you shall realise the five star living experience.

The residency provides well designed spaces for modern living. The spacious Living room opening to a viewing deck, A well planned master bedroom, modern kitchen space, cross ventilated layout in a breezy neighbourhood just near the waterfront.

Amenities Offered

A small society with good Lifestyle Amenities makes for daily comfort.

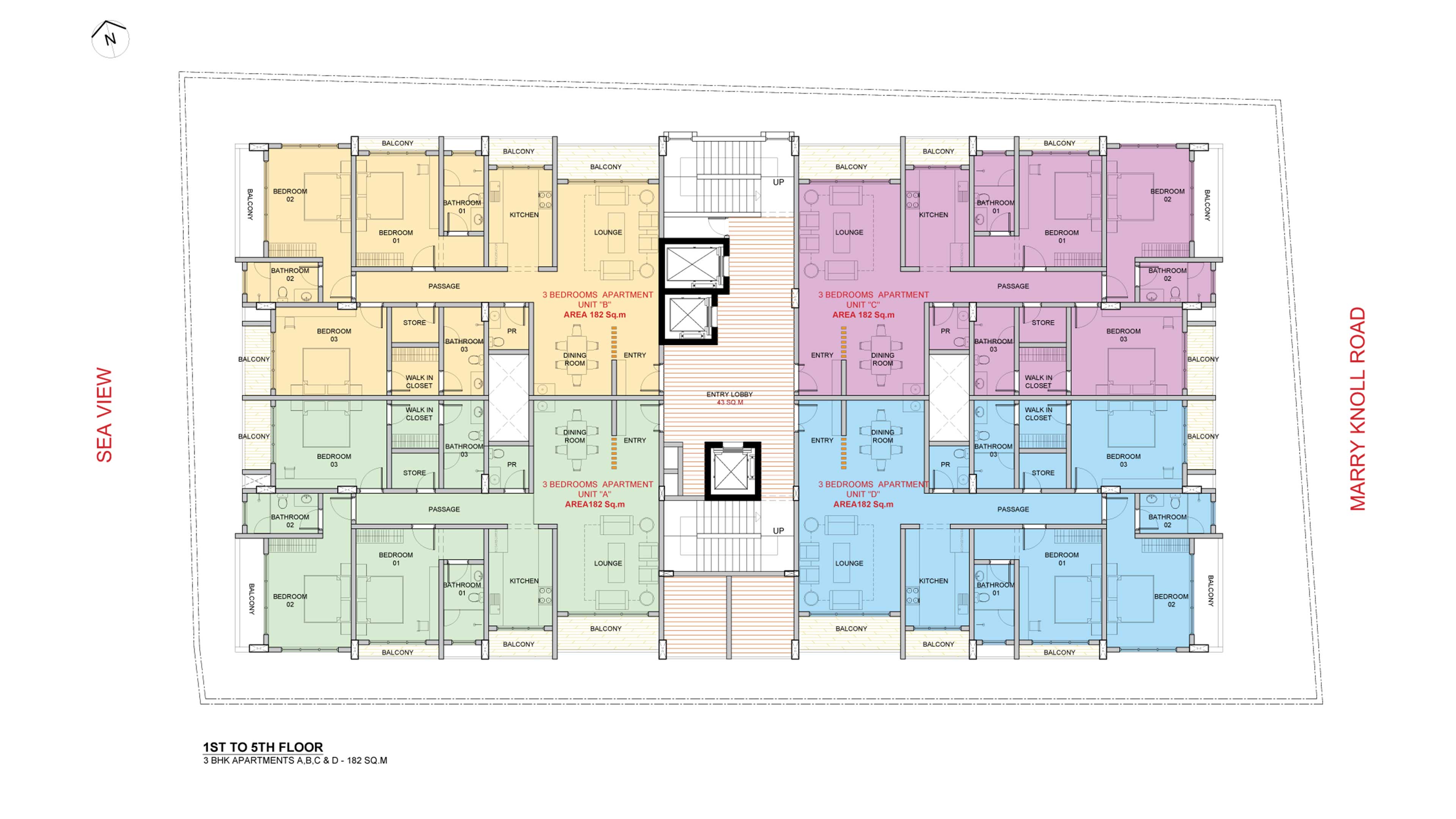
  • 1st to 5th Floor
  • 3BHK A, B, C, D - 195 m2

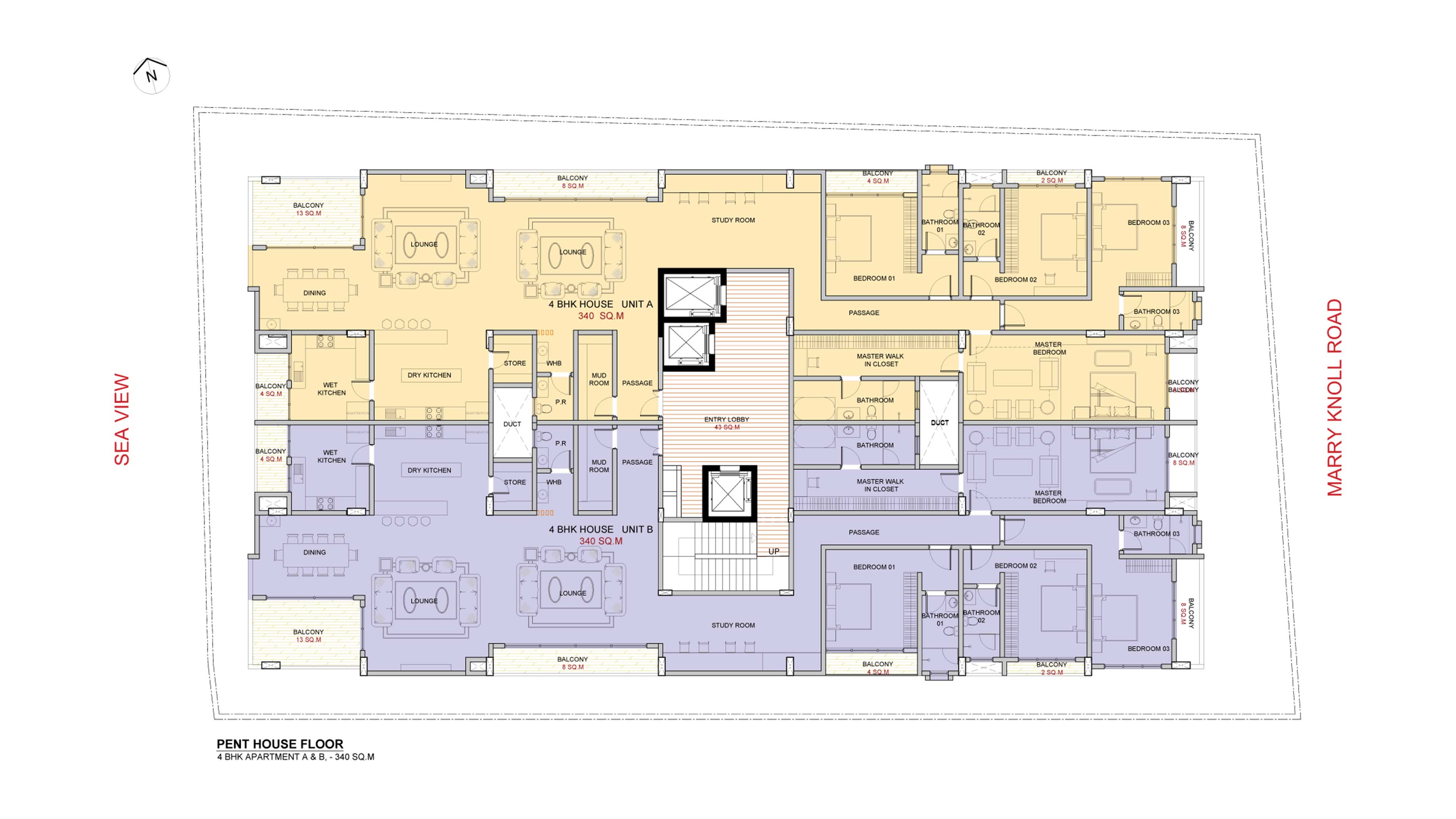
  • 4 BHK Apartment
  • A & B - 410 m2

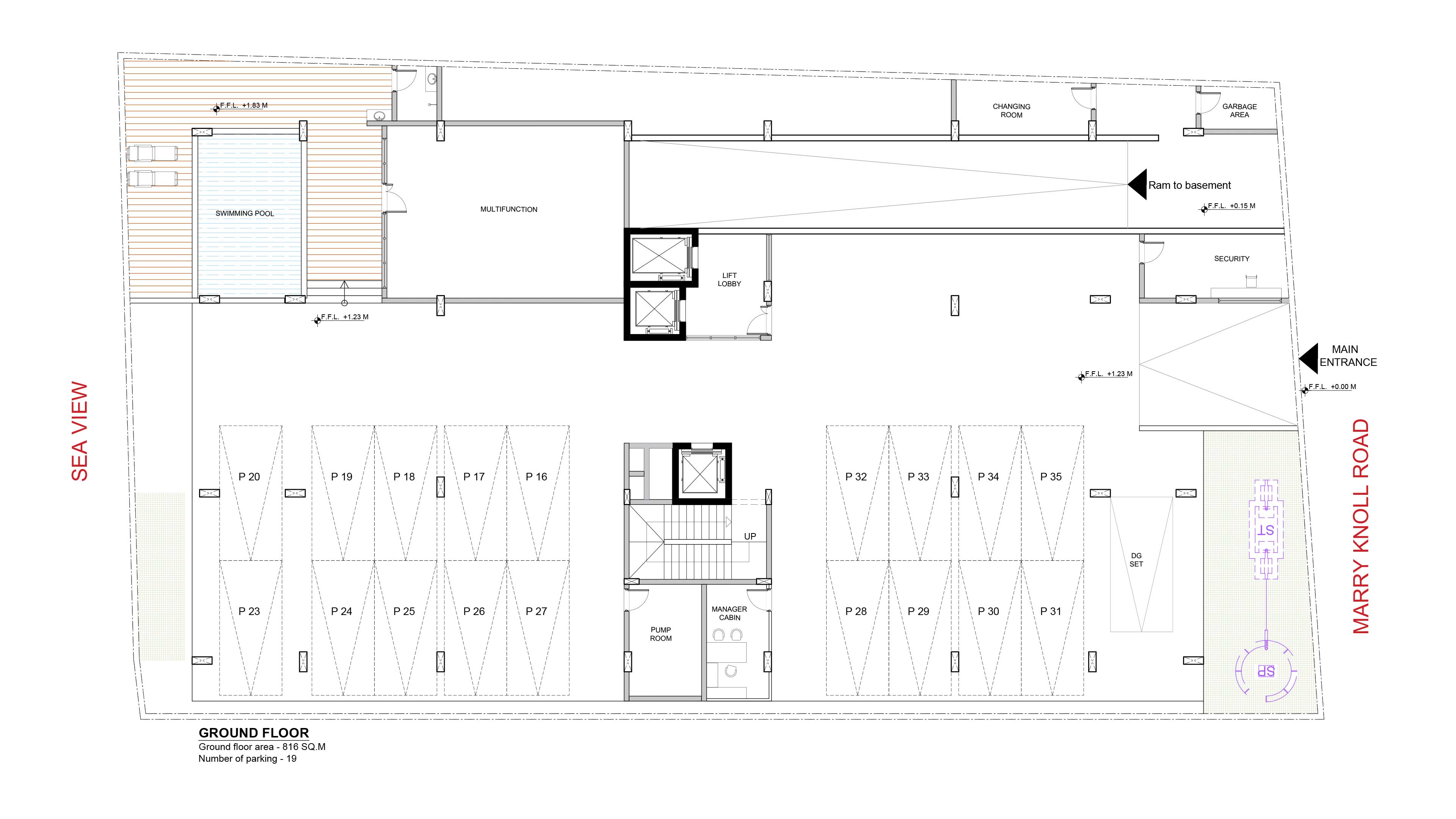
  • Ground Floor Area - 816 m2
  • Number of Parking - 19

  • Basement Floor Area - 816 m2
  • Number of Parking - 22

Location Advantage

The Location is super accessible to Super-Markets, Shopping Malls, Beaches, Tourist Spots

Schools/Colleges

  • Diligence International School
  • French School Arthur Rimbaud
  • International School Of Tanganyika
  • Good Samaritan English Medium School
  • Maple Bloom Pre-school
  • Peninsula English Medium School

Hospitals

  • CCBRT Hospital
  • Sali International Hospital
  • Msasani Peninsula Hospital
  • Cradle Speciality Health Centre